Dachgeschosswohnung mit Studio

  • Art
  • Kauf
  • Immobilienart
  • Wohnung
  • Fläche
  • 112 m2
  • Stockwerke
  • 3
  • Anzahl der Zimmer
  • 2
Предлагаем 2х комнатную квартиру-студию «двухуровневая» это идеальный вариант для большой семьи и огромный простор фантазии для дизайна. Новый объект недвижимости «классической таунхаус» в уникальном районе Унтерменцинг, на западной стороне Мюнхена.

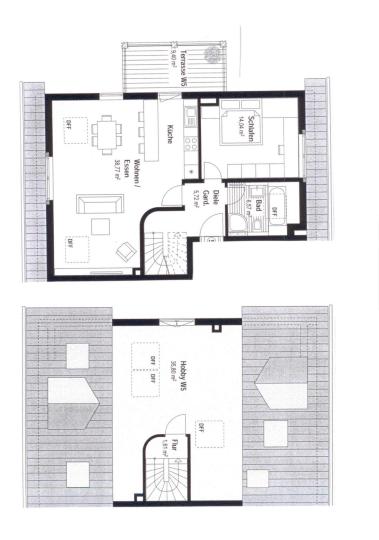
На 1-ом этаже квартиры пасположена кухня с гостиной / столовой, спальня, ванная комната и большой Балкон. Деревянная лестница ведет на второй этаж , в большую студию «35,8 м ²».
Жилой комплекс очень многогранный, он состоит из различных элегантных зданий и больших садов. Унтерменциг считается одним из престижных районов Мюнхена. Больше всего здесь впечатляет окружающая среда вокруг замка Блутенбург, с разнообразными культурными достопримечательностями.
Инфраструктура отличная, транспортная развязка оптимальная:  станция електрички "Untermenzing" расположена примерно в 1 км от обьекта. Отсюда вы можете в 15-ти минутах езды добратся до Карловой площади (Штахус) или (Маринплатц). 
Рестораны,  пивные сады, магазины и торговые центры по близости. 
Не далеко расположены два прекрасных озера «Langwiedersee и Lußsee», для купания и отдыха на прероде.

У нас огромный выбор недвижимости. Вы можете оставить заявку и мы подберём недвижимость в Мюнхене( или Баварии) специально для вас!

подробную информацию о недвижимости вы найдете на нашем сайте: http://ja-realestate.ru/ 
  • Lage
LandDeutschland
RegionBavaria
OrtMunich
Immobilienart:Wohnung
  • Eigenschaften
Baujahr:2015
Anzahl der Zimmer:2
Anzahl der Schlafzimmer:2
Anzahl der Küchen:1
Wohnfläche (m2):79
Gesamtläche (m2):112
  • Komfort
Fussbodenbelag:Parkettboden, Fliesenboden
Bad:Bad mit Badewanne, Bad mit Dusche, Bad mit WC, Tageslichtbad
Andere Räume:Keller
Sicherheitsanlagen:Rauchmelder
Ausstattung:Balkon/Terrasse
Heizungsart:Gasheizung, Zentralheizung, Solarzellen
Fensterverglasung:Lärmschutzverglasung, Sonnenschutzverglasung, Wärmeschutzverglasung

449 900 €

527 667 $
40 849 051 ₽

Auf der Karte

Weitere Angebote dieses Anbieters