Reihenhaus in Santiago de Ribera

  • Art
  • Kauf
  • Immobilienart
  • Haus
  • Fläche
  • 154 m2
  • Stockwerke
  • -
  • Anzahl der Zimmer
  • 4
Reihenhaus in Santiago de Ribera, Costa Blanca - Süden
Neue Wohnanlage , abgeschlossenen Bau
Vor-Ort-Schwimmbad und Grünflächen 
500 m zum Strand
Ausrichtung Süd-Ost
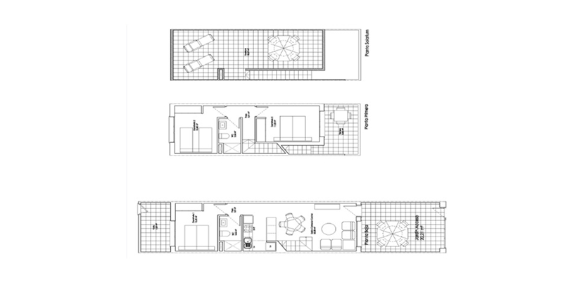
Die Fläche von 154 m2
3 Schlafzimmer
2 Badezimmer
Salon
Voll ausgestattete Küche
Terrasse
Patio 15 m2
Terrasse 53 m2
Für unmöbliert Verkauf
CEE Klasse D
Einkaufszentrum 2 km
Krankenhaus 10km
Tennis Club 2 km
Flughafen 15 km
International College 5 km
Die guten Verkehrsverbindungen auf der Nationalstraße N-332 oder die AP-7 Autobahn Autobahn
Preis 155 000 Euro
  • Lage
LandSpanien
RegionValencian Community
OrtSan Miguel de Salinas
Immobilienart:Haus
  • Eigenschaften
Anzahl der Zimmer:4
Wohnfläche (m2):154

155 000 €

178 914 $
14 752 880 ₽

Auf der Karte

Weitere Angebote dieses Anbieters